• Home
  • Compare
  • Search
  • Register
  • Introduction
  • Location
    • Aerial
    • Map
    • Gallery
      • Hawthorn Gallery
      • Auburn Gallery
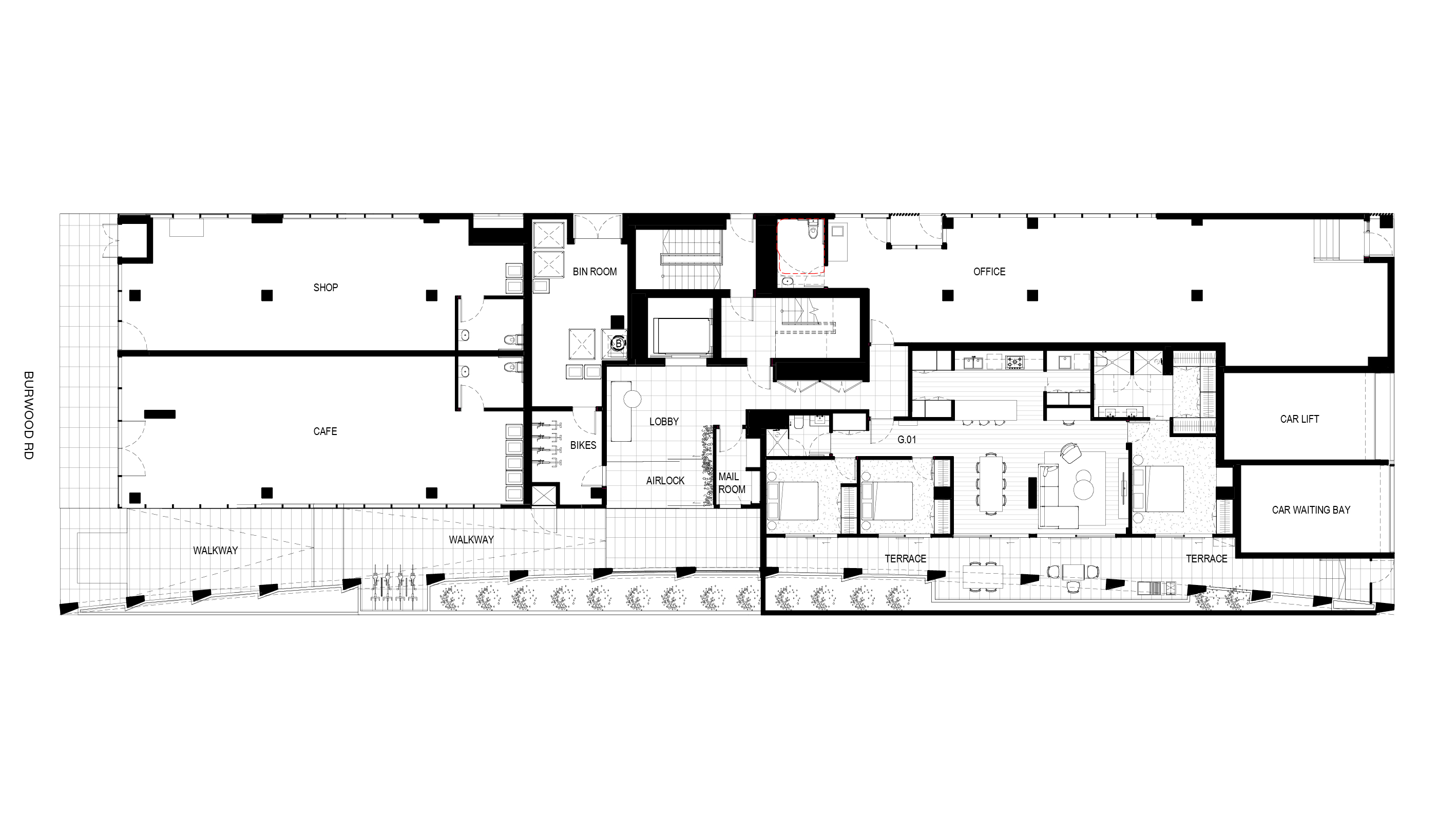
  • Floorplates & Floorplans
  • Gallery
  • Collaborators
  • Project Video
Line 2
Back

Ground

G01
Add to selection